Mini Clinic by Clinique La Prairie - Gstaad

Gstaad, Switzerland

2025

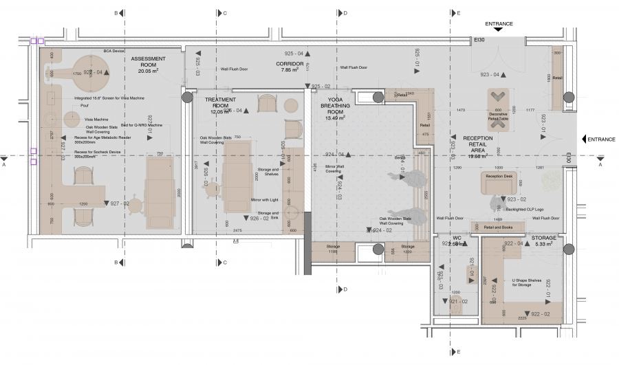
Giachi Studio designed the Clinique La Prairie Mini Clinic in Gstaad as a calm, refined wellness space combining clinical precision with warm minimalism. Reception and retail areas welcome with marble and wood, while assessment, treatment, and yoga rooms offer focused, restorative environments unified by soft lighting and natural materials.

ph. Giachi