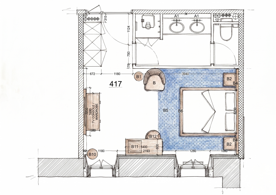
Clinique La Prairie Hotel Room - 417
Montreux, Switzerland
Hotel Room Design
2025
Since 1931, Clinique La Prairie has led in longevity and wellness, now evolving into a space of innovation and personalized hospitality. This design captures the brand’s essence health, serenity, and refinement through soft tones, clean lines, and elegant textures. A seamless layout connects lounge, sleep, and relaxation areas, while subtle lighting enhances the calm, luxurious ambiance.


